เพราะ ‘บ้าน’ คือสถานที่ชาร์จพลังยามเหนื่อยล้า หลายคนจึงให้ความสำคัญกับบ้าน โดยเฉพาะคนรุ่นมิเลนเนียมซึ่งมีความคิดและไลฟ์สไตล์ที่เป็นเอกลักษณ์ บ้านของพวกเขาจึงต้องตอบโจทย์ไลฟ์สไตล์ ทั้งการใช้ชีวิตและการทำงาน แถมยังต้องมีดีทั้งฟังก์ชั่นและดีไซน์ คนรุ่นมิเลนเนียมจึงนิยมตกแต่งบ้านเอง เพื่อให้ได้บ้านที่ใช่ในดีไซน์ที่ชอบ
ดังนั้นหากคุณเป็นคนหนึ่งที่กำลังคิดอยากมีบ้านเป็นของตัวเอง โดยมีเงือนไขสำคัญว่าต้องเป็นบ้านที่แตกต่าง โดยเฉพาะเมื่อคุณมีที่ดินเป็นมรดกตกทอดและอยากสร้างบ้านบนที่ดินผืนนั้นด้วยแล้ว SEACON home ศูนย์รับออกแบบและสร้างบ้านเป็นคำตอบที่คุณกำลังตามหา โดยวันนี้เรามีไอเดียแบบบ้าน “Special Home 2” จาก SEACON home พร้อมไอเดียตกแต่งมานำเสนอ

Special Home 2 เป็นบ้านสไตล์ Modern Contemporary พร้อมกับพื้นที่ใช้สอยขนาดใหญ่ ซึ่งกลายเป็นข้อดีในการดีไซน์บ้านให้มีหลากหลายฟังก์ชั่น พร้อมตอบโจทย์การออกแบบได้อย่างเต็มที่ โดยสถาปัตยกรรมของบ้านหลังนี้ออกแบบให้เป็นอาคารโปร่ง และโล่งด้วยการเปิดรับแสงธรรมชาติจากผนังกระจกบานใหญ่ตลอดแนวทั้งชั้นหนึ่งและชั้นสอง


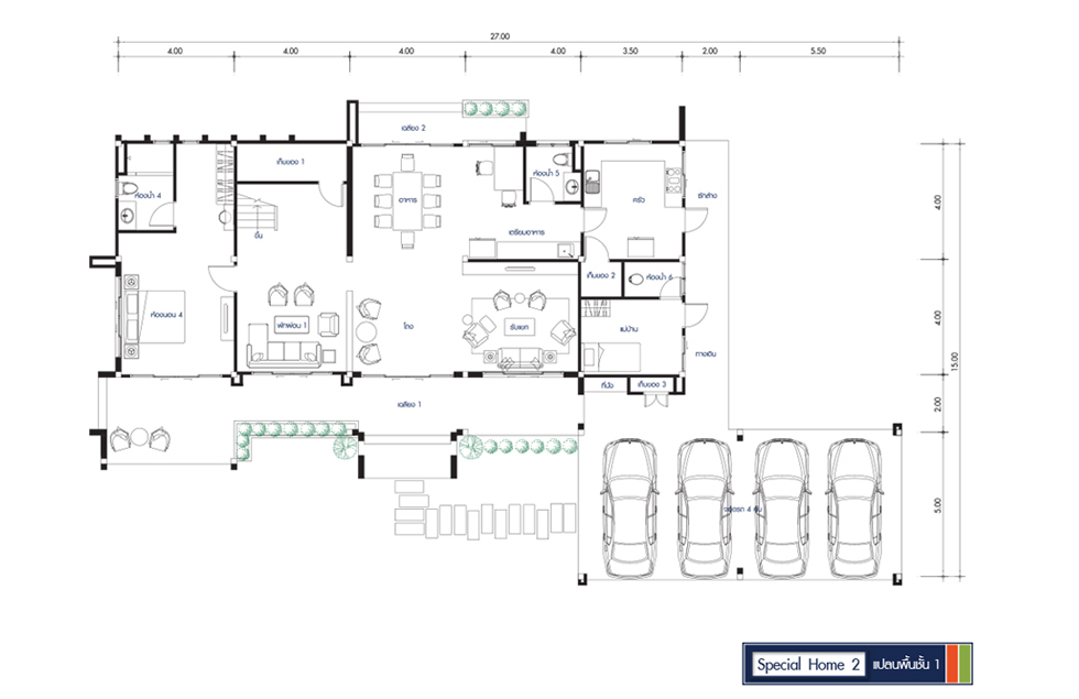
จากแปลนจะเห็นว่าพื้นที่ชั้น 1 ของบ้าน Special Home 2 จัดสรรพื้นที่อย่างเป็นสัดส่วน ขณะเดียวกันก็เชื่อมพื้นที่บ้านทั้งหมดเข้าด้วยกัน เริ่มจากห้องรับแขกขนาดใหญ่ที่จัดพื้นที่ให้ใกล้กับประตูทางเข้า เพื่อให้แขกได้นั่งพักทันทีที่มาเยือน โดยไม่รบกวนพื้นที่ส่วนตัวของสมาชิกคนอื่นๆ ฝั่งขวาออกแบบให้เป็นห้องครัว พร้อมห้องรับประทานอาหาร โดยมีห้องแม่บ้านอยู่ติดกัน ขณะที่ทางซ้ายมือดีไซน์ให้เป็นห้องนั่งเล่นสำหรับการพักผ่อนแบบส่วนตัว ซึ่งแยกจากห้องรับแขกอย่างชัดเจน โดยมีห้องนอนพร้อมห้องน้ำอยู่ลึกเข้าไป ส่วนชั้น 2 ประกอบด้วยห้องนอน 3 ห้องพร้อมห้องน้ำในตัว โดยจุดเด่นของชั้น 2 อยู่ที่การออกแบบให้มีห้องนั่งเล่น ซึ่งเป็นพื้นที่ส่วนรวมของทุกคน
INSPIRE YOUR DESIGN
อย่างที่กล่าวไปแล้วว่าข้อดีสำคัญของบ้าน Special Home 2 คือพื้นที่ใช้สอยขนาดใหญ่กับการจัดวางแปลนอย่างลงตัว ซึ่งทำให้สมาชิกในบ้านมีพื้นที่ส่วนตัว โดยไม่ลืมพื้นที่ส่วนรวมสำหรับทำกิจกรรมของครอบครัว และแม้บ้านจะวางแปลนมาอย่างชัดเจน แต่เชื่อว่าชาวมิเลนเนียมต้องปรับเปลี่ยนบ้านให้มีฟังก์ชั่นอื่นๆ ที่เป็นมากกว่าห้องนั่งเล่นและห้องนอน เราจึงมีไอเดียการตกแต่งบ้าน Special Home 2 ให้มีบรรยากาศ Cozy Modern Style มานำเสนอ เผื่อเป็นไอเดียในอนาคต

เริ่มจาก Home Studio กับการเปลี่ยนบ้านให้เป็นสถานที่ทำงาน เพราะสำหรับชาวมิเลนเนียมการทำงานไม่จำกัดว่าต้องเป็นที่ออฟฟิศเท่านั้น แต่คนเจนนี้สามารถเปลี่ยนทุกพื้นที่ให้เป็นสถานที่ทำงานได้ จึงไม่แปลกหากบ้านของคนรุ่นมิเลนเนียมจะมีห้องทำงานเป็นจริงเป็นจัง
การเปลี่ยนห้องนอนของชั้น 1 ซึ่งตั้งอยู่ทางซ้ายสุดของบ้านจึงเป็นทำเลที่เหมาะจะออกแบบให้เป็น Work Space โดยเฉพาะเมื่อเราสามารถพักสมองด้วยพื้นที่สวนที่เชื่อมต่อกัน แนะนำอีกนิดว่าห้องทำงานที่ดี ควรมีแสงสว่างที่เพียงพอ เพื่อสร้างบรรยากาศสบายๆ ลดความตึงเครียดของงาน ซึ่งการเลือกตกแต่งในสไตล์ Cozy Modern ในโทนขาวผสมผสานกับเฟอร์นิเจอร์จากงานไม้น้ำตาลอ่อนจึงตอบโจทย์ได้เป็นอย่างดี

พื้นที่ชั้น 1 ลองเชื่อมห้องนั่งเล่น ห้องรับแขก และห้องรับประทานอาหารเข้าด้วยกันจะได้โถงกลางบ้านขนาดใหญ่ ซึ่งทำให้บ้านโปร่งและกว้างขึ้น เป็นบรรยากาศของบ้านที่เมื่อแขกมาเยือนจะรู้สึกอบอุ่นและเป็นมิตร แถมหากจะจัดปาร์ตี้ พื้นที่โถงกลางนี้ยังสามารถตอบโจทย์ชาวมิเลนเนียมสายปาร์ตี้ได้เป็นอย่างดี เติมความเก๋ด้วยชั้นวางของสะสมขนาดใหญ่ที่นอกจากจะเอาไว้อวดสายตาแขกที่มาเยือนแล้ว ยังเป็นการบ่งบอกตัวตนของเราให้ชัดเจนขึ้น
แม้จะเชื่อมพื้นที่เข้าด้วยกัน แต่เราสามารถแบ่งสัดส่วนให้ชัดเจนได้ด้วยการจัดวางเฟอร์นิเจอร์ เช่น การออกแบบเคาน์เตอร์ยาวระหว่างพื้นที่ครัวกับพื้นที่นั่งเล่น ซึ่งนอกจากจะช่วยแบ่งพื้นที่อย่างเป็นสัดส่วนแล้ว เคาน์เตอร์นี้ยังทำงานได้หลายฟังก์ชั่น เป็นทั้งพื้นที่เตรียมอาหาร เป็นบาร์ค็อกเทลเก๋ไก๋ในช่วงเวลาปาร์ตี้ และเป็นพื้นที่ทำงานให้เราเปลี่ยนบรรยากาศ

ส่วนโถงนั่งเล่นบนชั้น 2 ของบ้าน ลองเนรมิตให้เป็นมุมอ่านหนังสือที่รายล้อมด้วยชั้นวางหนังสือสูงจากพื้นจรดเพดาน โดยเว้นผนังด้านหนึ่งให้เป็นผนังกระจก ซึ่งทำหน้าที่เป็นช่องแสงที่เปิดรับแสงธรรมชาติช่วยขับให้บรรยากาศผ่อนคลาย จัดให้มีมุมนั่งเล่นเป็นโซฟาเบดตัวยาวริมหน้าต่าง กลายเป็นมุมอ่านหนังสือที่ให้เราจมกับเรื่องราวในหนังสือได้ไม่มีเบื่อ
อีกหนึ่งไอเดียที่เอาใจคอหนังกับการเปลี่ยนห้องนอนสักห้องบนชั้น 2 ให้เป็นโรงภาพยนตร์ขนาดหย่อมแบบส่วนตัว ซึ่งการเปลี่ยนห้องนอนให้เป็นโรงภาพยนตร์ไม่ใช่เรื่องยากอย่างที่คิด เริ่มจากการเลือกผ้าม่านหนาทึบเพื่อทำหน้าที่กันแสงในกรณีที่ห้องมีหน้าต่าง ไม่ลืมกรุผนังและเพดานด้วยวัสดุช่วยเก็บเสียง และติดตั้งลำโพงแบบ Surround ที่ให้เสียงรอบทิศพร้อมกับสมาร์ททีวีจอใหญ่สักเครื่อง ไม่ลืมโซฟาตัวใหญ่แสนสบาย เพียงเท่านี้เราก็จะมีโรงภาพยนตร์ส่วนตัวที่สามารถดูหนังเรื่องโปรดได้ตามใจชอบ
ทั้งหมดนี้เป็นเพียงไอเดียคร่าวๆ เท่านั้น แต่หากคุณอยากได้บ้านที่ตอบโจทย์ชีวิตและครอบครัว สามารถสอบถามได้ที่ SEACON home ศูนย์รับออกแบบและสร้างบ้าน หรือข้อมูลเพิ่มเติมเกี่ยวกับแบบแปลนบ้านหรือไอเดียบ้านได้ที่ www.seaconhome.co.th